Будьте всегда в курсе!
Узнавайте о скидках и акциях первым
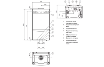
Газовый котел Vaillant turbo TEC pro VUW 242/5-3
Артикул:
000288
3 990 руб.
Под заказ
Нашли дешевле?
-
+
Цена действительна только для интернет-магазина и может отличаться от цен в розничных магазинах
- Описание
- Характеристики
- Отзывы
- Задать вопрос
- Монтаж
-
Описание
Газовый котел Vaillant turbo TEC pro VUW 242/5-3
Назначение:
- Отапливает дом при его теплопотерях от 8,0 до 24,9 кВт.
- Греет 11,5 литров горячей воды в минуту при её температуре 36 °C для одной ванны и кухни одновременно.
Преимущества:
- Надежный медный первичный теплообменник. Вторичный теплообменник из нержавеющей стали.
- Бронзовые гидравлические компоненты.
- Панель управления с интуитивно понятным интерфейсом и принципом управления «поверни и нажми».
- Низкий уровень шума.
- Возможность комбинации с солнечными системами и тепловыми насосами.
- Расширительный бак, автоматический воздухоотводчик, регулируемый байпас, предо-хранительный клапан.
- Защита от заклинивания насоса и приоритетного переключающего клапана при их простое более 23 ч.
- Электронный розжиг.
- Контроль состояния и поиск неисправностей на дисплее с помощью системы диагностики (DIA-System).
Комплектация:
- отопительный котел.
Газовый котел Vaillant turbo TEC pro VUW 242/5-3 отопительный двухконтурный с закрытой камерой сгорания стоит ли покупать?
На этот вопрос однозначного ответа нет. Но если вам нужен надежный,и самый продаваемый газовый котел в Бресте, то мы бы однозначно советовали бы присмотреться к котлу Vaillant turbo TEC pro VUW 242/5-3 в компании ТоргУниТри. Мы же в свою очередь постарались дать вам максимально честную и полезную информацию по телефону +375 33 3509446.
-
Характеристики
Количество контуров Двухконтурный Тип камеры сгорания Закрытая Тип установки Настенный Циркуляционный насос Да Максимальная мощность, кВт 24.9 Модель turbo TEC Давление в контуре отопления, бар 3 Гарантия, мес 24 Подключение контура отопления, дюйм 3/4 КПД, % 92 Площадь обогрева, кв.м. 240 Размер (ВхШхГ) 800х440х338 Диаметр подключения дымохода, мм 60/100 Диапазон регулировки мощности, кВт 8,0-24,9 Вес, кг 40 - Отзывы
-
Задать вопросВы можете задать любой интересующий вас вопрос по товару или работе магазина.
Наши квалифицированные специалисты обязательно вам помогут. -
Монтаж
- Монтаж газового котла – 160 руб
- Обвязка газового котла – 240 руб
- Обвязка бойлера косвенного нагрева- 208 руб
- Монтаж расширительной емкости- 71 руб



































































